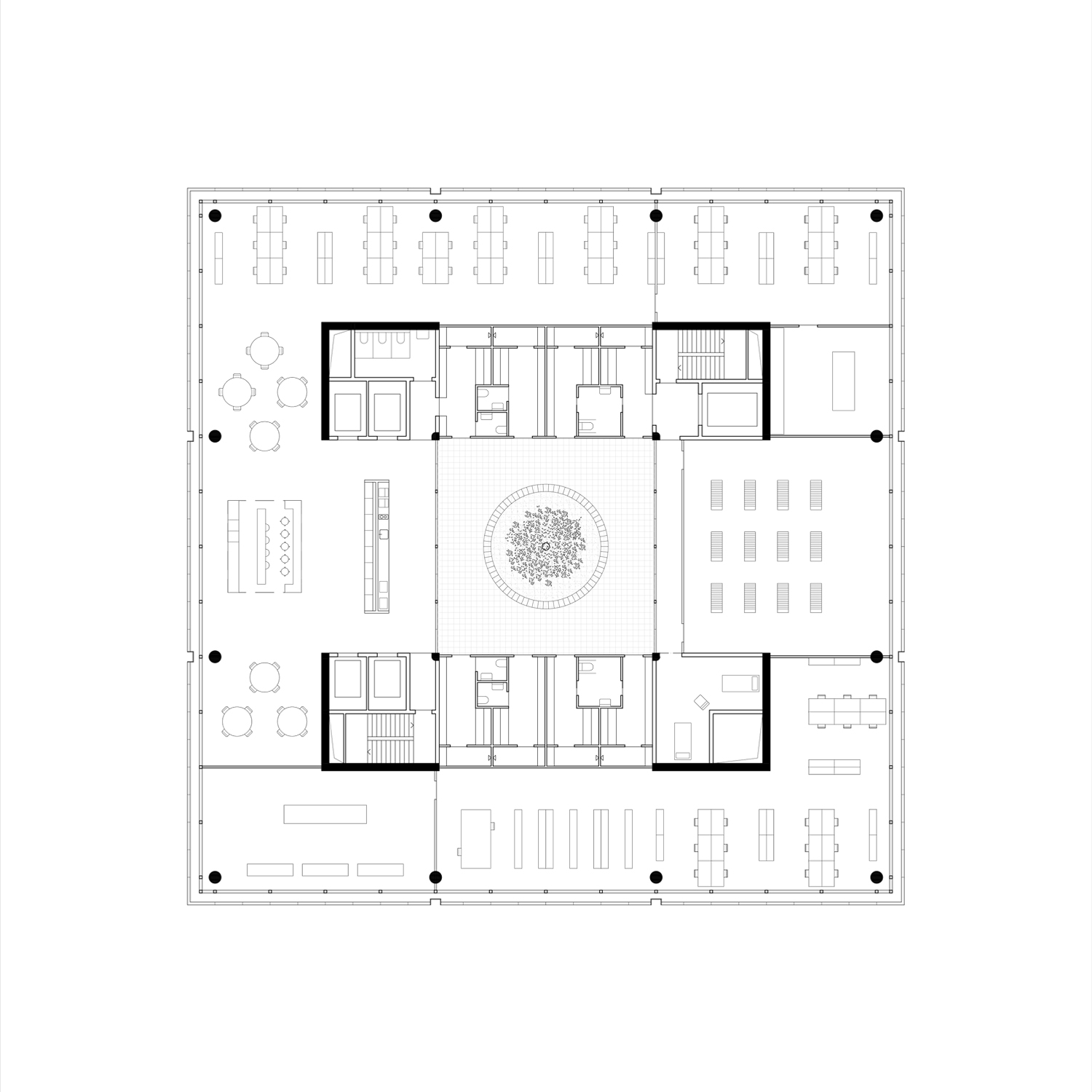
The site for the new town hall in Mitte is shaped by both history and the present — ideal conditions for a building with a democratic mission. Our proposal for a new town hall is a pure cube, consisting of a few concrete slabs spaced eleven meters apart. These are supported only by columns on the outer perimeter and shear walls in the four inner corners. This arrangement forms the permanent macrostructure built to endure and robust enough to carry the inserted wooden floors. The lightweight floors provide space for a wide range of activities and continuously evolving technologies.
Team: Carl Jägnefält, Konrad Milton, Daniel Andersson, Anton Kolbe, Martin Nässén, Gian Wick, Olaf Nowak, Hanna Xu, Calum Montgomery, Kayin Dawood, Edward Durie, Marie-Louise Schembri, Håkan Johnsson. Collaboration: Tyréns, Hilson Moran, Topia Landskapsarkitekter. For: Date: 2024-2025 — Renders/Images: Olivier Campagne







The site for the new town hall in Mitte is shaped by both history and the present — ideal conditions for a building with a democratic mission. Our proposal for a new town hall is a pure cube, consisting of a few concrete slabs spaced eleven meters apart. These are supported only by columns on the outer perimeter and shear walls in the four inner corners. This arrangement forms the permanent macrostructure built to endure and robust enough to carry the inserted wooden floors. The lightweight floors provide space for a wide range of activities and continuously evolving technologies.
Team: Carl Jägnefält, Konrad Milton, Daniel Andersson, Anton Kolbe, Martin Nässén, Gian Wick, Olaf Nowak, Hanna Xu, Calum Montgomery, Kayin Dawood, Edward Durie, Marie-Louise Schembri, Håkan Johnsson. Collaboration: Tyréns, Hilson Moran, Topia Landskapsarkitekter. For: Date: 2024-2025 — Renders/Images: Olivier Campagne




